1,717 sq. ft. (House Plan #081717)
Other features include:
- 8’ & 10’ ceilings
- Vaulted ceiling in the Master Bedroom
- Vaulted ceiling in the Great Room, Kitchen, Dining & Brk.
- Island in Kitchen
- Walk-in pantry
- Fireplace in the Great Room
- Built in for TV
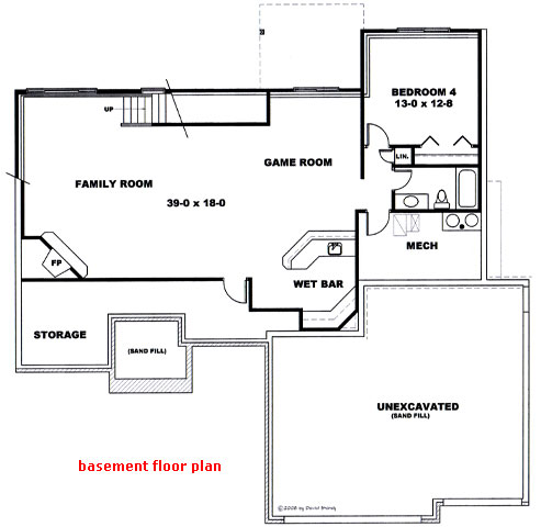
- Mid level walk out
- Covered Deck
- 3-Car Garage
- View-out basement
Details:
- 1717 Sq. Ft.
- 3-Bedrooms
- 2-Baths
- 61’ wide x 58’ deep
